环保设备选型参考系列——加药装置系列之全自动加药装置
发布时间:2022-12-01 16:18:09   浏览数:1557
 
1. 设备简介
1.1 工作原理
PT型全自动加药装置是连续制备和投加聚合物溶液的设备。它根据所需药剂浓度,连续而高效地完成聚合物的化合及混合,从而得到均质的有活性的聚合物溶液,通过加药泵向投药点或制定的系统中输送所配置的溶液。主要应用于市政水处理、污水厂等使用聚合物溶液的场合。
 
工作过程主要分为以下几步:
 (1) 料斗内加足干粉,由干投机开始将料斗内干粉输送至预浸润装置内,同时进水管电磁阀打开,干粉在预浸润装置内浸湿后靠重力流至混合槽进行搅拌、混合。
 (2) 经初步搅拌混合的药溶液通过溢流堰流至均质熟化槽,进行再搅拌、化合;经过一定时间有效、轻柔的低速搅拌后,药溶液达到了均质、熟化、有活性的要求;再通过溢流堰流至溶液储存槽内,即可用以加药。
 (3) 当溶液储存槽内注满药溶液后,液位开关发出信号,干投机及电磁阀自动关闭。
 (4) 加药泵启动,同时电磁阀打开,把药溶液投加至所需设备。
 (5) 溶液储存槽内的液位达到设定的低液位时,液位开关发出信号,本装置开始自动重复上述(1)、(2)、(3)步骤,确保溶液储存槽内有足够的药液。
 
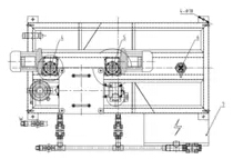
1.2 主要组成
主要由投药装置、溶药装置、给水系统和控制系统组成:
 1.2.1 投药装置
由不锈钢料斗、螺杆输送机、电加热器等组成。
 (1) 不锈钢料斗有效容积:60L,能够满足长时间的用量,料斗设有视镜,可人工观察料位。而料位计可自动监测料位,同时会发出信号报警。
 (2) 螺杆输送机由蜗轮蜗杆减速机驱动高精度的螺杆组成。减速机具有重量轻,运行平稳及效率高等特点。高精度的螺杆能够完全满足用户的用量。
 (3) 电加热器安装在输送机出料管中,能够防止出料管中干粉受潮结块而造成堵塞出料管的现象。 
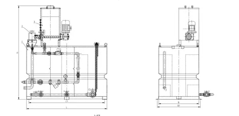
1.2.2 溶药装置
通常由预浸润装置、不锈钢槽体及两台搅拌机组成。
 (1) 预浸润装置采用不锈钢旋流斗,水流从切线方向进入,在旋流斗内形成一股旋流水幕,预先浸湿和混合干粉,并进入预制混合槽。
 (2) 不锈钢槽体为三槽式结构,分别为预制混合槽、匀质熟化槽、药液储存槽。各槽间都设有隔板及溢流堰板,在药液配制过程中,药液须从隔板的底部经溢流堰板上部堰流至下一槽内,能尽量避免生液短流进入熟化的药液。槽体为全封闭结构,上方装有带拉手的不锈钢盖。在预制混合槽内设有内藏式溢流管,用以当液位超过设定的高位(故障)时,防止液体从槽体上部溢出。三个槽底部都设有出药管及手动球阀,并将这三个出药管口连接起来,一端作为投药管,另一端作为放空管。
 (3) 两台搅拌机安装在预制混合槽、匀质熟化槽中,搅拌器结构独特,转速恰当,既能保证溶液的均质化,又不破坏聚合物分子链。
 1.2.3 给水系统
由UPVC管路、手动球阀、过滤器、压力表、电磁阀、截止阀和转子流量计等组成。
 (1)过滤器用来拦截水中的杂质,用来保护电磁阀。
 (2)压力表安装在过滤器后面,显示压力,如压力过低,则显示过滤器已堵塞,需要清除过滤器中的杂质。
 (3)电磁阀接收电信号进水,实现自动进水。
 (4)转子流量计用来显示进水流量。
 (5)截止阀用来调节进水流量,调节方便、稳定。1.2.4 控制系统
由电气控制柜和液位开关组成。
 电气控制柜采用施耐德电气元件。
 
1.3 应用范围
(1)水处理中投加混凝剂、助凝剂、消毒剂、酸碱液;
(2)冷却水、循环水中投加阻垢剂等;
 (3)化工、印染中投加酸碱溶液与其它溶液。
 为方便客户对商城上线产品的配置,技术参数和特点进行深入了解,更为便捷快速的进行设备选型,特进行如下设备选型指导。
 
2. 选型说明
根据药剂特性选择不同的材质,本商城可做不锈钢材质和PP材质的。
2.1 药剂投加量的计算
就污水处理中常用药剂而言,一般情况下混凝剂(PAC)的投加浓度约为15%,助凝剂(PAM)的投加浓度约为0.1%--0.3%。
客户给定参数:
(1)待处理水量Q(m3/h);
(2)手工做操次数n(次);
(3)药剂投加量g(mg/l或ppm,1mg/l=1ppm);
 
下面以处理量Q=100m3/h,n=3,g=1mg/l为例:
a) 技术参数确定
配置溶液浓度M=0.2%(重量浓度);
药液熟化时间t=1—1.5h(通常取值1h)
b) 投药量计算
Q--待处理水量(m3/h)
B%--药剂商品纯度
 g--药剂投加量(mg/l或ppm,1mg/l=1ppm)
 c) 溶液量计算
 
所需溶液总量R=G/M=2.4/0.2%=1200kg/d=1200L/d
 
每次溶药量P=R/n=1200/3=400 kg/次=400L/次
每小时投加量S=R/24=1200/24=50L/h
 
注:客户根据药剂投加量选型,如:PT958,即投加量为958L/h,其他类推。如果商城型号没有所需投加量,则按照就近原则,如投加量1000L/h,则可以选择PT958。具体选型还可咨询客服人员。
 
2.2 设备选型
目前商城上线产品设备外形图、型号及参数表如下:





 
注:由于受到生产限制,PT200型的全自动加药装置一般不做外售。
 
2.2.1 变频和不变频说明
我们商城上线的产品分为变频全自动加药装置和不变频全自动加药装置:
2.2.1.1 变频全自动加药装置
变频全自动加药装置药剂投加浓度范围在0.1%--0.25%,主要是用过变频器控制药剂投加电机转速来实现加药浓度的变化,变频器安装在电控柜里面(如图)。
2.2.1.2 不变频全自动加药装置
它和变频的主要区别是不含变频器,根据客户提供配药浓度(0.1%--0.3%),设备在出厂前做投加量核算实验,配置相应的螺旋体,定量输送干粉至溶药箱。
2.3 设备配置表
(1) 高度集成一体式,占地面积小。
(2) 操作简单,安装方便。
(3) 自动化程度高。
(4) 料斗的设计已充分考虑到与实际使用量所匹配,避免长时间药剂存放受潮。
(5) 加药桶尺寸、材质根据客户需求而定。
普新泵业 服务热线
152-6174-1118
普新泵业 公司地址
淮安经济开发区三亚路12号
电话:0517-87065777    传真:0517-83572658    邮箱:shygch@126.com
版权所有:淮安普新泵业有限公司    网站备案号:苏ICP备2022049004号    网站维护制作:卓越凯欣
网站关键词:计量泵、高压往复泵、成套化学加药装置、水处理设备、高压计量泵、加药装置、计量泵配件、背压阀
本网站部分图片来源于网络,如有侵权,请告知删除

微信关注我们

访问手机网站